Домодедово
Режим работы

Понедельник: с 09:00 до 18:30

Вторник: с 09:00 до 18:30

Среда: с 09:00 до 18:30

Четверг: с 09:00 до 18:30

Пятница: с 09:00 до 18:30

Суббота: c 10:00 до 17:00 Работает только call-центр

Воскресенье: c 10:00 до 17:00 Работает только call-центр


Склад:

Пн. – Cб.: c 09:00 до 18:00

Вс.: выходной

Каталог

Инструкция по замеру рольставен (роллет)

Для снятия замеров для рольставен лучше вызвать нашего специалиста. Профессиональный замерщик не только снимет размеры оконного проема правильно, но и увидит возможные дефекты отделки или самого проема, отметит наличие выступающих и мешающих монтажу элементов. Это исключает или минимизирует риск возможных ошибок.

Особенности замера рольставен в зависимости от способа монтажа

Рольставни устанавливаются одним из трех способов:

  • Накладным — снаружи или внутри помещения;
  • Встроенным — снаружи или внутри помещения;
  • Комбинированным.

Короб и направляющие могут располагаться как внутри оконного или дверного проема, так и снаружи — на стене. Установка роллет возможна внутри помещения или снаружи, со стороны улицы.

Замер рольставен

До установки важно подготовить проем или убедиться в том, что у него правильная геометрия, нет дефектов отделки или проходящих рядом с ним коммуникаций, место установки чистое и ровное. Допустимое отклонение от вертикали ±5°. Если внутри стены или на ней проходят провода, трубы, имеются декоративные или функциональные элементы, это нужно отразить на чертеже и учесть в замерах. Если планируется автоматический привод, заранее нужно продумать, где будут установлены элементы управления, как к ним будет подводиться питание.

При проведении замеров нужно осмотреть несущие конструкции и отделку. При установке не допускаются люфты, все элементы должны плотно прилегать к основе. Крепеж подбирают с учетом материалов стен, отделки. Если несущая способность недостаточная для установки роллет, проем дополнительно усиливают металлокаркасом, применяют химический крепеж, используют для крепления анкеры или сквозные шпильки.

Замер проема для накладного монтажа рольставен

Накладной монтаж имеет преимущества:

  • световой проем сохраняется;
  • можно закрыть роллетами проем с дефектами геометрии или отделки;
  • если потребуется ремонт или обслуживание, короб и направляющие остаются доступными.

Минусы накладного монтажа:

  • более высокая стоимость, так как площадь роллетной системы больше, если сравнивать со встроенными рольставнями;
  • короб и направляющие выделяются на фасаде.

Накладной монтаж выбирают, когда нужно закрыть проем нестандартной формы: арочный, ромбовидный, полукруглый, асимметричный. Также этот способ установки подходит для проемов с дефектами периметра или отделки.

Замер рольставен

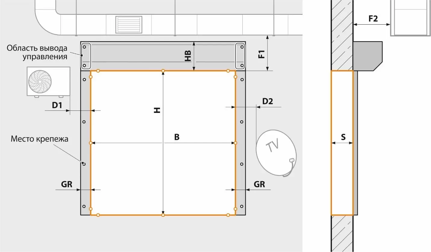
Как снимают замеры:

  • ширину замеряют в 3 – 4 точках: внизу, вверху и в середине, за итоговую ширину принимают максимальную величину;
  • высоту контура также измеряют в нескольких точках, принимая за итог максимальное значение;
  • если проем непрочный, делают отступ от края не меньше 30 мм.

При снятии замеров учитывают отделку, размеры и расположение отливов, возможного декора или функциональных элементов. Их указывают на чертеже, учитывают при монтаже. Предусматривают точки крепления короба роллеты над проемом.

Высота рольставен должна быть больше на размер одной ламели, которая не заходит при поднятии в короб и остается в качестве концевой внутри направляющих для корректной работы системы.

Замер рольставен

При наружном накладном монтаже элементы управления выводятся через стенку. Для этого измеряют толщину стены и определяют материал, из которого она состоит.

Замер рольставен

Замер проема для встроенного монтажа рольставен

Преимущества встроенного монтажа:

  • более низкая стоимость, если сравнивать с накладными роллетами, так как площадь установки меньше;
  • вся система прячется внутри проема и не выделяется на фасаде.

Минусы встроенной установки:

  • проем должен быть более высокого качества, без недостатков геометрии, отделки;
  • короб и направляющие уменьшают световой проем.

Также нужно понимать, что установленные внутри проема рольставни могут не давать полностью открывать створки.

При внутреннем способе установки крепеж выполняется враспор. Чтобы конструкция не деформировалась и работала корректно, контур должен быть ровным, с допустимым отклонением прилегания от нижней горизонтали 5 мм/м.п.

Замер рольставен

Снятие замеров производится следующим образом:

  • ширину измеряют в нескольких точках: внизу, вверху и в середине проема, принимая за итоговое значение наименьшее;
  • высоту также измеряют в 3 – 4 точках, итогом будет наименьшая из снятых величин;
  • чтобы система поместилась враспор, необходимо предусмотреть запас — значения по ширине и высоте уменьшают на 5 мм.

При снятии мерок отмечают наличие, расположение, размеры отливов, откосов, декора, прочих элементов. Короб обычно крепится враспор, но иногда приходится закреплять его вертикально, устанавливая крепеж в верхнюю часть крышки по бокам, над направляющими. Точки для такого монтажа также необходимо определить.

    Выполним замер бесплатно
    в пределах МКАД + 10 км

    Оставьте заявку и в кратчайшее рабочее время с Вами свяжутся для уточнений детали выезда
    Форма заказа замера
    Заполните форму
    В кратчайшее рабочее время с Вами свяжутся для уточнений детали выезда
    Поле обязательно для заполнения
    Бесплатный выезд осуществляется не на все товары. Подробности озвучит оператор при звонке
    Форма заказа замера